我們可為您提供以下服務
多種系列產品任你選,總有一款適合你
成千上萬成功案例
產品熱銷到中東、非洲、東南亞、歐洲、南美洲等60多個國家和地區
ADVANTAGES
選擇勝邦鋼構的
4大優勢
勝邦鋼構精于制作鋼結構廠房、倉庫、物流中心、體育館、飛機庫、鋼構超市、高層建筑鋼構、集裝箱房屋等鋼結構建筑...
Shengbang Steel Structure is good at manufacturing steel structure factory buildings, warehouses, logistics centers, stadiums, hangars, steel structure supermarkets, high-rise steel structures, container houses and other steel structure buildings ...
準時交付,保質保量
專屬設計師深化方案
嚴控品質,多道加工工序
客服人員7*24小時為您服務
嚴謹的工藝流程
嚴格保證產品良品率,嚴控一道道加工工序,為您生產高質量產品

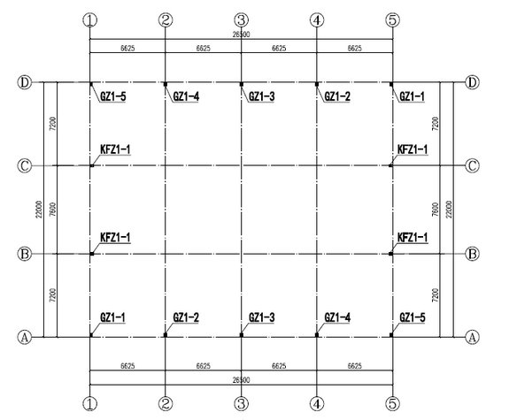
1設計圖

2生產圖

3備料

4多頭數控CNC切割機

5組立

6自動埋弧焊接

7翼緣板調直

8鉚工制作

9焊接

10質檢

11打砂除銹

12噴涂

13包裝

14裝柜發貨

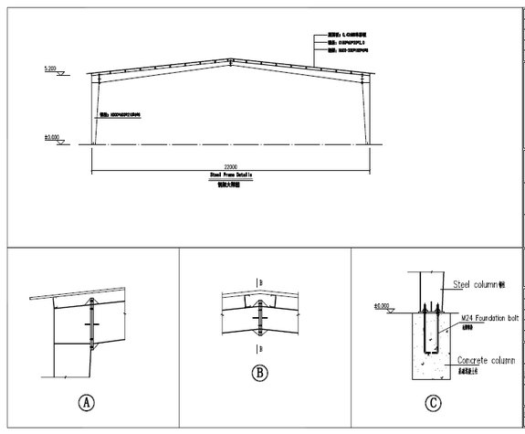
15基礎預埋件

16立柱吊裝

17橫梁吊裝

18維護系統安裝

19排水系統

20竣工
關于勝邦鋼結構
專業承建鋼結構建筑的發展型企業
信息中心
想了解更多可以關注我們的資訊